Ufficio in affitto

Cesena, ufficio via kuliscioff - Pievesestina
€ 1.200 / mese
5 locali 5 locali
164 Mq 164 Mq
2 bagni 2 bagni

Ufficio in affitto

Cesena, ufficio via kuliscioff - Pievesestina

Descrizione annuncio

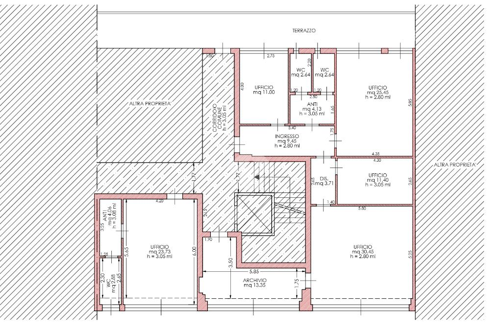
Cesena : Pievesestina , propniamo in locazione ampio ufficio in complesso situato al secondo ed ultimo piano di centro direzionale in zona industriale adiacente al casello autostradale di Cesena Nord.

L'ufficio e' diviso in cinque uffici piu' archivio e disimpegno ed ingresso , sono presenti due servizi igienici con finestra ed antibagno .

Presenza di impianto di riscaldamento ad aria per il caldo ed il freddo , l'impianto elettrico ed idraulico sono a norma ed e' presente cablazione , infissi nuovi con doppivetri e vasistas.

Mostra tutto

Nelle vicinanze

Trasporto pubblico Trasporto pubblico
Cesena, Piazzale dell'Accoglienzia
Cesena, Piazzale dell'Accoglienzia
1,4 Km
Scuole Scuole
Scuole
180 m
Farmacia Farmacia
Farmacia Villa San Giuseppe
2,0 Km
Supermercati Supermercati
Punto sma
2,3 Km
Ristoranti Ristoranti
Circolo Fuorimano
1,4 Km
Pizzeria Jonny
2,1 Km
La Meridiana
2,9 Km
Ristoranti
2,9 Km
Ristorante Pizzeria La Greppia
3,0 Km
Mostra tutto

Caratteristiche

Rif.:
61192258
Piano:
2 di 2 con ascensore (Piano alto)
Balconi:
1
Condizionamento:
Autonomo
Ascensore:
Riscaldamento:
Autonomo
Mostra tutto
Prezzo Prezzo
€ 1.200 / mese
Spese annue Spese annue
€ 600

Altre caratteristiche

Descrizione dei locali
Bagno Con Finestra

Classe Energetica

E
E
E
E
E
E
E
E
E
Anno di costruzione:
1995
Riscaldamento:
Autonomo
Tipo impianto:
Ad aria
Tipo alimentazione:
Metano

Ti interessa visionare l'immobile?

Fissa un appuntamento  Fissa un appuntamento

Richiedi informazioni

Clicca su Leggi per aprire l'informativa
* Questi campi sono obbligatori
Affiliato
Studio Myricae Industriale Srl
Viale Della Repubblica, 96 47900 Rimini (RN)

Il nostro staff


  • Maurizio Rossi
    Affiliato

  • Federico Edoardo Manfredi
    Collaboratore

  • Alessandra Mazzini
    Collaboratrice

  • Silvia Rossi
    Coordinatrice
Viale Della Repubblica, 96 47900 Rimini (RN)
Zona: Comune di Rimini
Mostra su mappa
Orari: Lunedì/Venerdì 9:00 -13:00 15:00 19:30 Sabato 9:00 - 13:00
Affiliato
Studio Myricae Industriale Srl
Viale Della Repubblica, 96 47900 Rimini (RN)

2026 Tecnocasa Franchising S.p.A. - P. IVA 08365160152 - Via Monte Bianco 60/A 20089 Rozzano (MI). Ogni agenzia ha un proprio titolare ed è autonoma. Privacy policy | Policy utilizzo | Cookie policy